City Hall Renovation Project

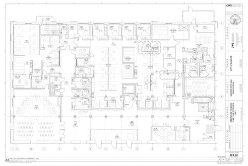
City Hall - First Floor Layout Plan Image
  1. 1 Clerk and Treasury Windows
  2. 2 Council Chambers Dais
  3. 3 Council Chambers to Audience

The historic City Hall at 73 Harlow St. is reopened for municipal operations on Monday, Aug. 11, 2025, following an extensive renovation project lasting 20 months.

Among the improvements at City Hall are improved access to services with Assessing, Clerk/Treasury, Code, Community and Economic Development, and Planning services all located on the first floor, as well as Council Chambers. Additionally, a new HVAC system was installed that helps make the building far more energy efficient, a new elevator that meets federal requirements, and safety and security enhancements.

April 2025

The renovation of City Hall is entering its final phase as work crews turn their attention to additional electrical wiring, ceiling work, painting and other "final punch list" items, according to Director of Engineering Jefferson Davis. 

The accompanying photo shows what will be the City Clerk and Treasury counter on the first floor of City Hall. The entrance to Council Chambers can be seen at the other end of the lobby. Council Chambers were previously on the third floor of City Hall. To the right of the counter is a newly installed elevator. 

Some of the additional work needed on the first floor includes installing flooring and adding ceiling grids, Davis said. Repointing work has been done on the exterior of the building and crews are waterproofing it. 

The intention is to have City Hall open once again for municipal operations at some point in summer 2025. 

Clerk & Treasury counter on first floor

A photo of first floor renovations of city hall

December 2024

Clerk & Treasury Counter Entrances

Clerk/Treasury Counter Entry

Council Chambers

Council Chambers

October 2, 2024

The first floor of City Hall is starting to take shape as walls have been erected for various offices, according to interim Engineering Director Jefferson Davis.First floor construction at City Hall

Steel beams have been put in place that will allow for more space on the first floor for City Council Chambers. Council Chambers were previously on the third floor of City Hall and now will be located on the north side of the first floor.

Crews are working on the new elevator shaft, and the equipment is in place for the building’s HVAC system, Davis said. Ceiling repairs are underway on the second and third floors. The work of repointing the exterior continues, and decorative trim around the windows is being restored.

Davis said much work must still be done but the intention is to have the renovation done by the end of April 2025.


June 3, 2024

The contractor on the renovation work, Benchmark Construction, reports that old condensers have been removed from the roof of City Hall and replaced with new ones. Duct work has been connected and a new roof hatch is being fabricated.

New piping has been completed in the basement for the boilers and the work on wiring is ongoing.

On the first floor, the demolition to create the elevator pit is about 75% complete. Steel stud framing is about halfway done, duct work is 75% finished, and pipe and duct insulation is around 75% complete. New windows are being installed around the first floor and steel plate reinforcement has been added to the columns in the City Council Chamber.

May 8, 2024

The wiring for the control panel in the basement is now halfway complete, and piping and wiring for the fire alarm is 80% complete. Boiler and other work in the basement also is nearing completion.

Excavation work for the elevator pit on the first floor has resumed and steel framing along the floor has begun. Metal door frames have been delivered and duct work along the floor is about 60% complete. Up on the second floor, crews have finished duct and pipe insulation, and continue to make progress on other work for that floor.

The ceiling grid on the third floor is about 80% installed and fire alarm boxes are being installed in the ceiling tile.

This is just a brief overview of the extensive renovation work that's ongoing at City Hall. The work is scheduled to conclude at some point in early to mid-2025, at which point municipal operations will return to City Hall from their temporary location a few blocks down Harlow Street at the Penquis building.

First Floor Offices

First Floor Offices

First Floor Elevator Excavation

First Floor Elevator Excavation

Third Floor Ceiling Grid

Third Floor Ceiling Grid

March 19, 2024

The renovation of City Hall is progressing to the point that asbestos abatement on the first floor is about 80% complete as crews with Benchmark construction also work to replace windows, begin work on the new space for Council Chambers on the first floor and continue with the pit excavation to prepare for the installation of a new elevator.

In the basement, new boiler piping is about 75% complete and other pipes for heating are being extended across the space.

Up on the second floor, the wiring for new lights and for the fire alarm is nearly done, as is the HVAC ductwork. Heat pump lines have been tested and the conduit feed for new electric panels is 75% complete.

And on the third floor, wiring for new lights and the fire alarm is done, while the ductwork for the HVAC system is completed and almost fully insulated.

Prior Code Department

Prior Code Department

New Elevator Location

New Elevator Location

February 23, 2024

The renovation of Bangor City Hall began in January and crews with Benchmark construction have completed about 90% of the demolition work needed on the first floor. Asbestos abatement is underway on that floor.

Renovating the first floor is necessary to provide improved public access to city services. The project will include renovating all floors of City Hall and Benchmark will replace the elevator system while making improvements to building security and to its heating and cooling system, according to City Engineer John Theriault. Concrete slab has been cut to make room for the new elevator.

Some of the other work that began in January included removing the ceiling, lights and duct system on the third floor; removing the boiler in the basement (new boilers are in stock and pumps and tanks are on-site); and laying out new heat pipe runs while also marking new duct holes through the walls.

Additionally, the 8,000-gallon oil tank in the basement was cleaned and removed from the building. Demolition work on the second floor is about 75% complete and on the third floor it's about 95 complete. The demolition on these upper floors is related to the installation of the new heating and cooling system. Duct work on the second floor is about 20% complete, and heat pump and branch control units and lines for the floor are about 75% complete. Duct work on the third floor for new heating and cooling is about 90% complete.

The renovation of City Hall is expected to last about 18 months, extending into the middle of 2025.

As work continues, the building is closed to the public. The City recognizes the temporary closure may cause inconvenience to some, and appreciates the community's understanding and cooperation during this period of improvement. Municipal operations are currently being conducted at 262 Harlow Street, in the Penquis building. People seeking municipal services must enter at the rear of the building.

First Floor Main Entrance

First Floor Main Entrance

Elevator Pit Location

Elevator Pit Location

January 2024

Clerk Office

Clerk Office

Treasury Department

Treasury Department

Code Department

Code Department

Old Boiler Removal

Oil Boiler Removed

Parking Area

Parking Area